Prodej bytu 4+KK/OV/L 72 m2, ul. Vajdova Praha 15 - Hostivař | HVB Real Estate
21.01.2026 18:30
Útok na rekordní prodeje. Tak vypadal rezidenční trh v Praze v loňském roce. Developeři během roku 2025 prodali v hlavním městě celkem 6910 nových...
20.01.2026 16:49
Jiná totiž bude hodnota nemovitosti, pokud ji odhadujete například pro účely pojištění, jiná bude, pokud ji plánujete prodat, a jiná bude také, pokud...
19.01.2026 14:35
Koupili jste si loni nemovitost? Nebo jste snad nějakou prodali? Lhostejno, zda je o dům, louku či pole nebo „jen“ spoluvlastnický podíl. V každém z...

Prodej bytu 4+KK/OV/L 72 m2, ul. Vajdova Praha 15 - Hostivař

  • photo_1
  • photo_3
  • photo_4
  • photo_5
  • photo_6
  • photo_7
  • photo_8
  • photo_9
  • photo_10
  • photo_11
  • photo_12
  • photo_13
  • photo_14
  • photo_15
  • photo_16
  • photo_17
  • photo_18
  • photo_19
  • photo_20
  • photo_21
  • photo_23
  • photo_24
  • photo_25
Cena
8 998 000 CZK
Včetně provize RK a právních služeb
Dimitri Naumov
Dimitri Naumov
Telefon: 739 281 635
Profil makléře

Žádost o více informací

Vyplňte následující formulář. Upřesněte, co by Vás zajímalo. V nejbližší Vás naši makléři kontaktují.

Mám zájem, kontaktujte mě

Formulář odešle nabídku na uvedený email

 
Poslat známému
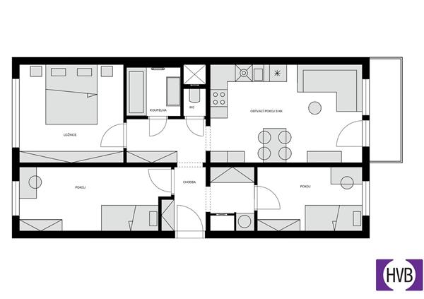
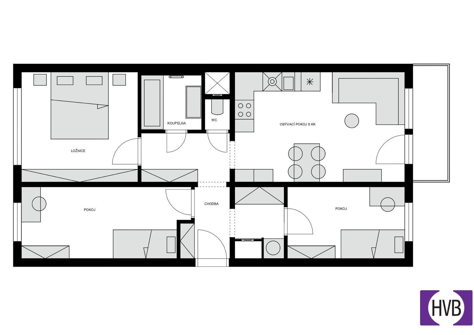
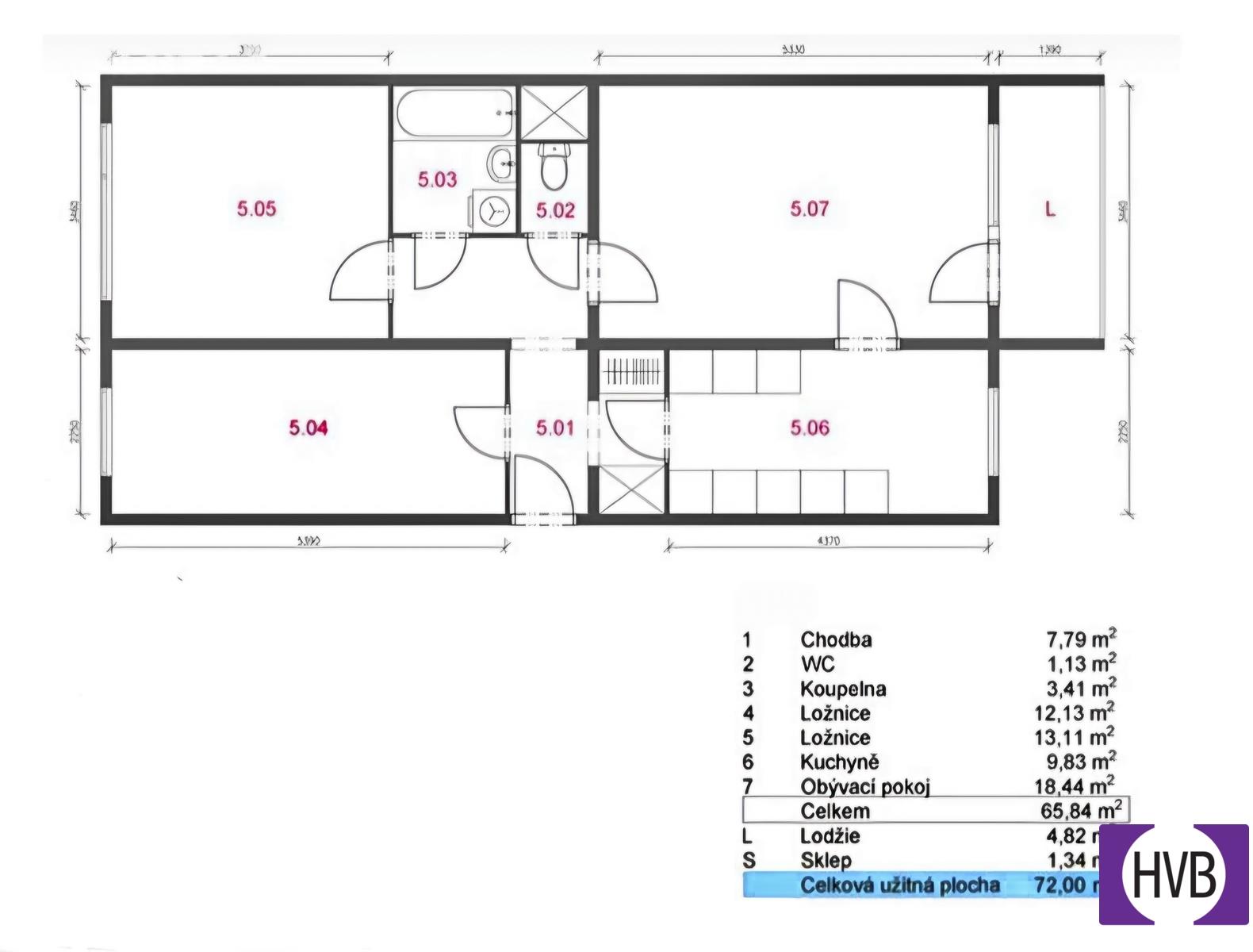
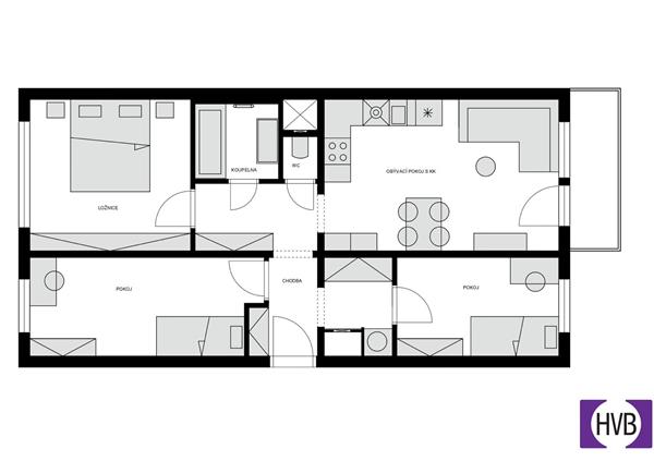
Nabízíme k prodeji světlý prostorný byt po kompletní rozsáhlé rekonstrukci včetně elektřiny o dispozici 4+kk s lodžií o celkové výměře cca 72m2, nacházející se na adrese ul. Vajdova Praha - Hostivař. Tato nemovitost, situovaná v 9. patře panelové budovy, nabízí pěkný výhled na okolí. Dispozici tvoří vstupní chodba, obývací pokoj s plně vybaveným kuchyňským koutem, tři obytné místnosti, koupelna, oddělené místo pro pračku a samostatné WC. Bydlení je navrženo s ohledem na moderní životní styl, vybaveno kvalitními materiály a promyšlenými detaily. Součástí bytu je také prostorná lodžie cca 6m2. Budova prošla revitalizací. V blízkosti nemovitosti se nachází veškerá občanská vybavenost, včetně obchodů, restaurací a volnočasových aktivit, což činí tuto lokalitu velmi atraktivní pro všechny, kteří hledají pohodlné rodinné bydlení. Doprava do centra města je zajištěna prostřednictvím městské hromadné dopravy, v pěší vzdálenosti zastávka autobusů s přímým spojem na metro. V případě zájmu o prohlídku nás neváhejte kontaktovat i přes víkend.
Zobrazit více
evidenční číslo:
N2516724
stav zakázky:
aktivní
lokalita:
Vajdova, Praha 15
datum aktualizace:
12.12.2025
dispozice:
4+kk
plocha užitná:
72 m2
plocha sklep:
2 m2
plocha lodžie:
6 m2
typ vlastnictví:
osobní
celkem pater:
12
patro:
8. patro
konstrukce budovy:
panel
elektřina:
230V
kanalizace:
městská
výtah:
Ano
lodžie:
Ano
PENB třída:
C - úsporná