Pronájem RD 170 m², pozemek 347 m², Holubice, okres Praha-západ | HVB Real Estate
09.03.2026 10:38
Koupit dům, na jehož pozemku je studna, se dnes může zdát jako výhra v loterii. Zvláště pokud jste nadšení zahrádkáři nebo plánujete být alespoň...
06.03.2026 17:50
Reklamní triky a slogany někdy řádně přehánějí. A je tomu tak i v oblasti nabídky a prodeje nemovitostí. Již před lety se nabízely mobilheimy, pro...
04.03.2026 20:55
Asociace českých stavebních spořitelen v roce 2025 poskytly klientům úvěry v celkové výši 67,2 miliardy korun, což představuje meziroční nárůst o...

Pronájem RD 170 m², pozemek 347 m², Holubice, okres Praha-západ

  • photo_1
  • photo_2
  • photo_3
  • photo_4
  • photo_5
  • photo_6
  • photo_7
  • photo_8
  • photo_9
  • photo_10
  • photo_11
Cena
20 000 CZK/měs
Novinka
Ing. Libor Manda
Ing. Libor Manda
Telefon: 608 116 666
Profil makléře

Žádost o více informací

Vyplňte následující formulář. Upřesněte, co by Vás zajímalo. V nejbližší Vás naši makléři kontaktují.

Mám zájem, kontaktujte mě

Formulář odešle nabídku na uvedený email

 
Poslat známému
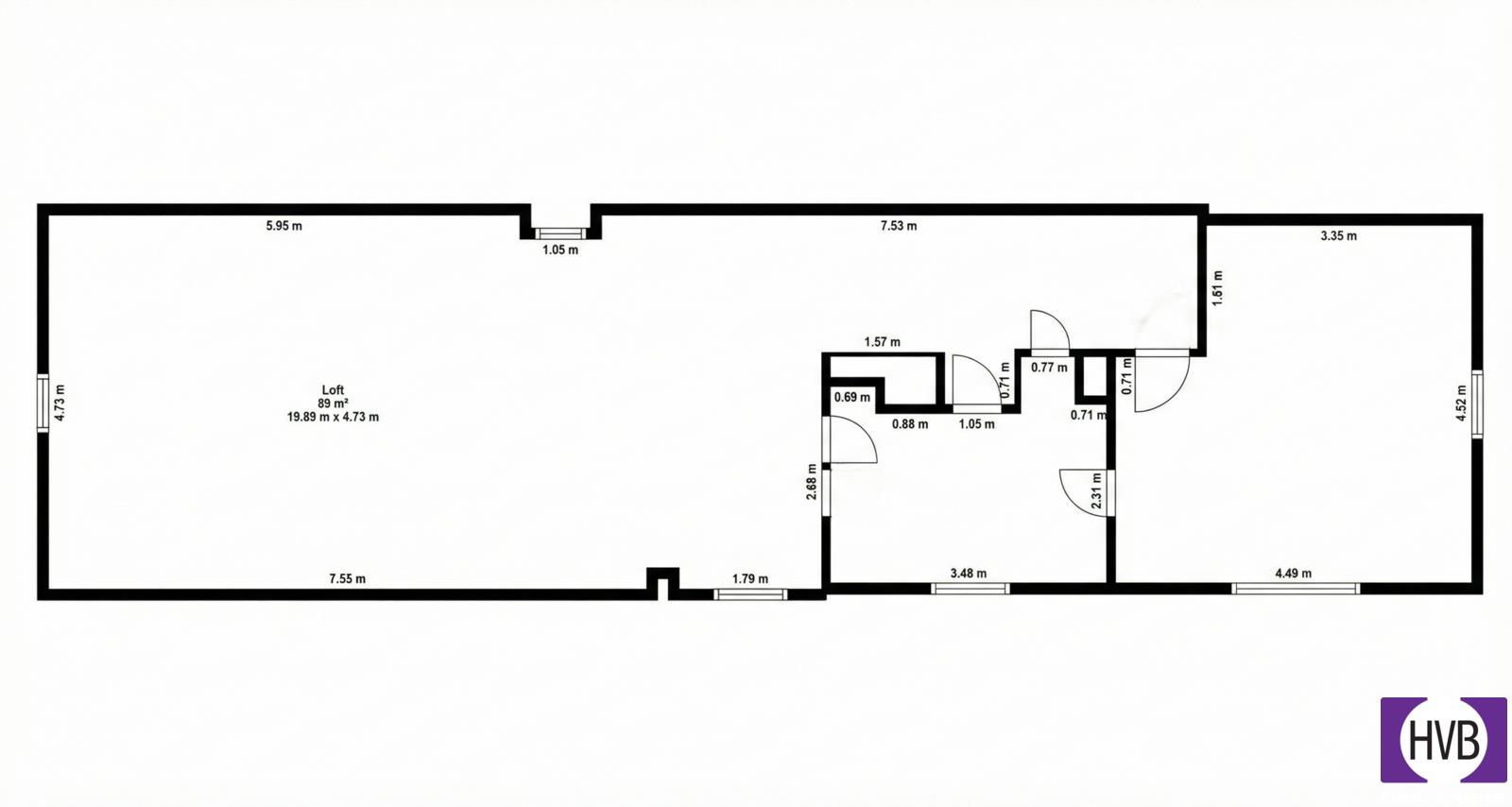
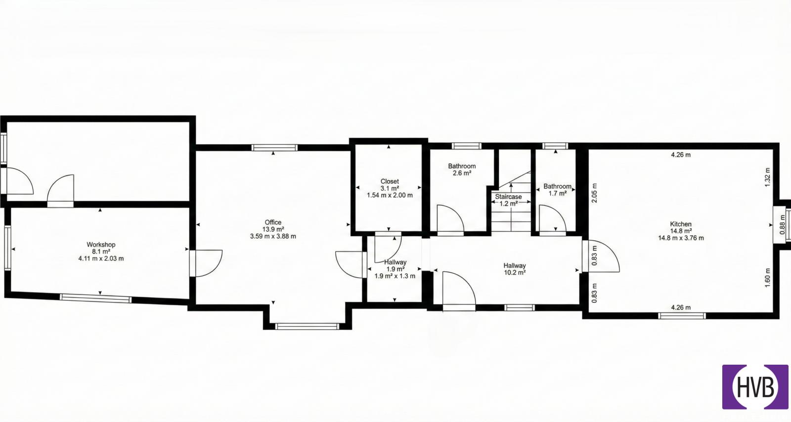
Pronájem nezařízeného rodinného domu 170 m², pozemek 347 m², Holubice, okres Praha-západ. Předmětem nabídky je prostorný rodinný dům o dispozici 5+kk se zahradou a možností parkování na vlastním pozemku. Nemovitost se nachází v klidné a bezpečné lokalitě. Stavba je dvoupodlažní a částečně podsklepená, přičemž prošla přístavbou patra v roce 2002. Konstrukce je smíšená z kamene, cihel a tvárnic a dům je napojen na veškeré inženýrské sítě včetně veřejného vodovodu, kanalizace a elektřiny 230/400 V. Vytápění celého objektu zajišťuje elektrický kotel s centrálním rozvodem. Dispozice domu - v prvním nadzemním podlaží se nachází kuchyně, koupelna vybavená sprchovým koutem, samostatná toaleta a pokoj vhodný pro využití jako ložnice nebo pracovna. Součástí přízemí je také technická místnost a vstup do suterénu. Druhé nadzemní podlaží nabízí jeden velkorysý obytný pokoj a další menší samostatný pokoj, který lze využít jako dětský pokoj či šatnu. Komfort tohoto patra zvyšuje druhá koupelna s rohovou vanou a toaletou. Nejnižší úroveň domu tvoří tři samostatné sklepní prostory, které poskytují nadstandardní skladovací kapacity. K domu přiléhá udržovaná zahrada s jižní orientací a terasou. Lokalita vyniká výbornou občanskou vybaveností. Rodiny s dětmi ocení základní školu umístěnou v bezprostřední blízkosti domu a mateřskou školu přímo v obci. Pro každodenní nákupy a stravování jsou k dispozici místní obchod a restaurace. Dopravní dostupnost do metropole je zajištěna na vysoké úrovni. Obec leží v těsné blízkosti dálnice D7, cesta autem na okraj Prahy trvá přibližně 15 minut. Alternativu představuje spolehlivé spojení autobusy Pražské integrované dopravy, které zajišťují pravidelnou přepravu do hlavního města i okolí. Přepis elektřiny na nájemce, služby 1.200,- Kč. Vratná kauce 40.000,- Kč, Provize RK 20.000,- Kč + DPH. K dispozici od 1.4. 2026. Více informací k dispozici na vyžádání nebo při osobním setkání. PENB G. Uvedené informace jsou orientační a mohou se v průběhu inzerce měnit.
Zobrazit více
evidenční číslo:
N2617079
stav zakázky:
aktivní
lokalita:
V Průhonu, Holubice
datum aktualizace:
12.03.2026
podtyp nemovitosti:
samostatný
plocha užitná:
170 m2
plocha parcela:
347 m2
konstrukce budovy:
cihla
elektřina:
230 / 400V
kanalizace:
městská
voda:
vodovod
PENB třída:
G - mimořádně nehospodárná