Prodej bytu 2+kk 87 m²/PS, OV, Poděbrady, okr. Nymburk | HVB Real Estate
02.12.2025 20:16
Systém vlastnictví družstevních bytů a bytů v osobním vlastnictví je zásadně odlišný. I když máme často pocit, že družstevní byt lze také „prodat“, v...
01.12.2025 17:22
Kupujete-li dům, ať rodinný, nebo bytový, určitě se zaměříte také na kvalitu střechy. Je-li střecha novější, je větší pravděpodobnost, že do domu...
28.11.2025 06:56
Stovky tisíc českých domácností čeká finanční šok. V nejbližší době jim totiž skončí výhodné fixace hypoték z doby covidové pandemie, z rekordně...

Prodej bytu 2+kk 87 m²/PS, OV, Poděbrady, okr. Nymburk

  • photo_1
  • photo_2
  • photo_3
  • photo_4
  • photo_5
  • photo_6
  • photo_7
  • photo_8
  • photo_9
  • photo_10
  • photo_11
  • photo_12
Cena
8 240 000 CZK
Ing. Libor Manda
Ing. Libor Manda
Telefon: 608 116 666
Profil makléře

Žádost o více informací

Vyplňte následující formulář. Upřesněte, co by Vás zajímalo. V nejbližší Vás naši makléři kontaktují.

Mám zájem, kontaktujte mě

Formulář odešle nabídku na uvedený email

 
Poslat známému
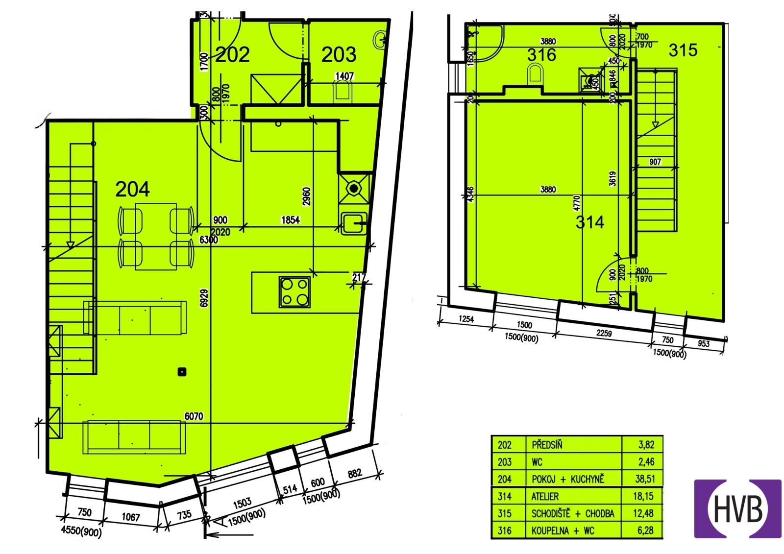
Prodej bytu 2+kk, 87 m²/PS, OV, Poděbrady. Mezonetový, energeticky úsporný, klimatizovaný byt s dvěma koupelnami, vlastním krytým parkovacím stáním a sklepem byl kolaudován v r. 2019 a nachází se v srdci lázeňského města Poděbrady. Byt je součástí druhého a třetího nadzemního podlaží cihlového domu s výtahem, nemovitost je přístupná bezbariérově pouze přes dálkově ovládanou bránu pro vjezd autem či brankou pro pěší. V domě se nachází 4 bytové a jedna nebytová jednotka . Dispozice bytu nabízí v nižším podlaží chodbu, první z koupelen a prostorný obývací pokoj s plně vybaveným, moderním kuchyňským koutem. Z obývacího pokoje vedou designové schody do druhého patra bytu, kde se nachází chodba s prostorem pro vytvoření pracovního nebo cvičebního koutu, ložnice s velkou vestavěnou skříní se zrcadlem a druhá koupelna se sprchovým koutem, WC, pračkou, sušičkou a plynovým kondenzačním kotlem. V celém bytě je podlahové vytápění, v obytných místnostech s vinylovou podlahou a v koupelně a na WC s dlažbou, ložnice má venkovní žaluzie pro zajištění příjemného klimatu a soukromí. Měsíční náklady na provoz jsou 6200 Kč včetně fondu oprav. Lokalita poskytuje ideální kombinaci klidného bydlení a městského života s výbornou občanskou vybaveností. V blízkém okolí se nachází kolonáda, která je dominantou města, s mnoha kavárnami, restauracemi a obchody, náměstí i řeka Labe s příležitostí pro procházky a sportovní aktivity. V dosahu je supermarket, pošta, lékárna, lékařské služby a banky. Pro rodiny s dětmi jsou v okolí dostupné mateřské i základní školy. Dopravní dostupnost je na vysoké úrovni. Byt je umístěn pouhých 50 metrů od autobusové zastávky a 750 metrů od vlakového nádraží. Do Prahy je to autem pouhých 25 minut po dálnici D11. Vlakové i autobusové spojení do Prahy a okolních měst nabízí pohodlné a rychlé dojíždění pro každodenní cesty i víkendové výlety. Celkově se jedná o nemovitost, která splňuje požadavky na moderní a komfortní bydlení v atraktivní lokalitě s kompletní vybaveností a skvělým dopravním spojením. Více informací k dispozici na vyžádání nebo při osobním setkání. PENB B. Možnost zajištění financování hypotečním úvěrem. Uvedené informace jsou orientační a mohou se v průběhu inzerce měnit.
Zobrazit více
evidenční číslo:
N2516624
stav zakázky:
aktivní
lokalita:
Palackého, Poděbrady
datum aktualizace:
21.11.2025
dispozice:
2+kk
plocha užitná:
87 m2
plocha sklep:
5 m2
typ vlastnictví:
osobní
celkem pater:
2
patro:
1. patro
konstrukce budovy:
cihla
elektřina:
230V
kanalizace:
městská
výtah:
Ano
PENB třída:
B - velmi úsporná